












7
3
2 (2)
4 (1)
9
9
8
8
8
8
8
8
8













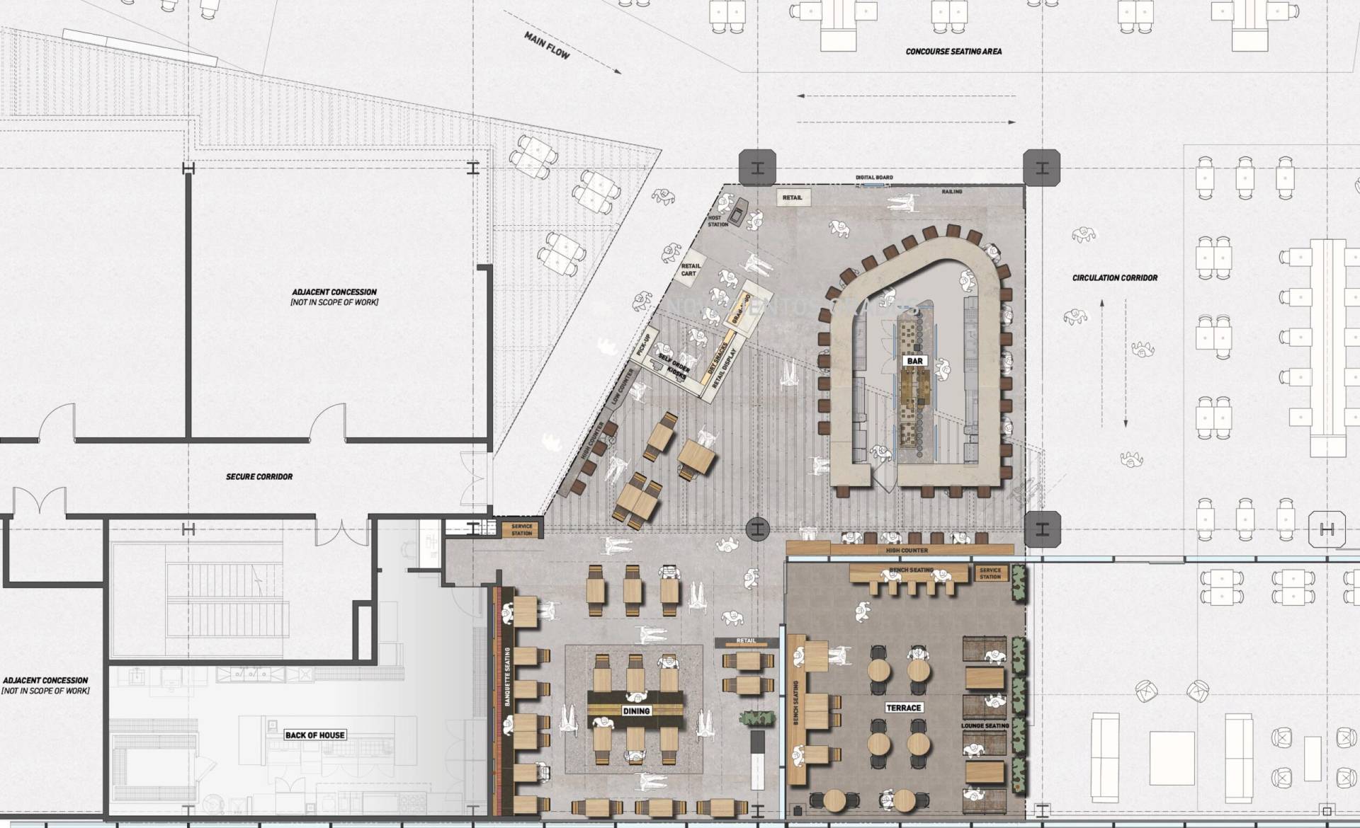
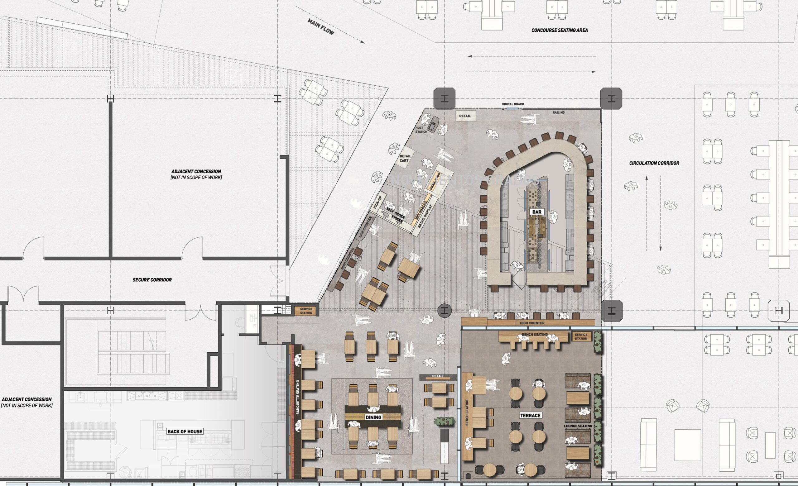
Architecture Designed as the flagship component of the new terminal structure, the restaurant and bar occupy approximately 5,000 square feet and feature significant frontage on the departures level of the new terminal wing at San Diego International Airport. Drawing inspiration from the city’s urban skate parks and historic architecture, the flagship restaurant features an island bar, a tarmac-facing dining space, and an outdoor patio. The design dynamic places the open island bar at the center of the dining space, with the architecture conceived as a sculptural form that incorporates a series of sweeping ramps floating above a cantilevered steel canopy. The bar’s facade features illuminated glass panels adorned with vibrant floral embroidery, enhancing the organic visual language of the installation. The overall design theme creates an immersive atmosphere in full view of passengers traveling through the new terminal building. NOVECIENTOS GRADOS BY TONY HAWK
SAN Terminal 1
MORE ON GRAPHICS
Interior Design
Lighting Design
Branding and Graphics